York Cold War Bunker

History of York Cold War Bunker

The York Cold War Bunker, known historically as No. 20 Group Headquarters or Group Control, was constructed in 1961 as part of Britain’s defence against the impact of a nuclear strike. The site operated within a national network of bunkers whose role was to observe and locate nuclear explosions, report on power and altitude, and track ensuing radiation. This network came under the aegis of the United Kingdom Warning and Monitoring Organisation (UKWMO), part of the Home Office, but it was operated by the Royal Observer Corps (ROC), a largely voluntary organisation which at the peak of its nuclear reporting role counted over 25,000 members nationally.

1974 Home Office (Scotland Home and Health Department) information booklet on nuclear weapons

Context

The detonation in 1945 of atomic bombs over the Japanese cities of Hiroshima and Nagasaki set in train a rapid arms race. Within a decade of those first strikes, thermonuclear devices, with faster and longer-range delivery systems, were capable of yields more than 1,000 times more powerful than those used over Japan.

Over that decade, the British state had conducted studies into the effect of nuclear explosions. Detonation would trigger an intense burst of light and heat, followed by a powerful shockwave, which would devastate and irradiate a localised area and destroy electrical services through an electromagnetic pulse. That first shock would be followed by airborne radioactive dust, able to travel on prevailing winds to endanger areas many hundreds of miles from ground zero.

The lower Operations Room with acrylic plotting screens and map table

The UKWMO network

Britain’s own nuclear response entered service in 1953. The following year, UKWMO – responsible for warning the public of an attack and its aftermath – began work on a network of bunkers in an attempt to mitigate the worst effects of a nuclear strike. The ROC was co-opted from the War Office to operate and maintain the network, gathering data for Home Office scientists to analyse.

The Royal Observer Corps, formed in 1925, played a critical role during the Second World War spotting and identifying planes, and noting their direction and speed so as to calculate a likely target and arrival time. The existing ROC national network of hundreds of small monitoring posts supported by regional controls provided an ideal platform for the nuclear role. The York bunker acted as a coordinating facility for data collected by over 40 posts (subterranean concrete boxes for three people) across the Yorkshire region. That data was processed in the Group Control before being communicated to Sector (Lincoln) and on to numerous agencies and clients such as the Ministry of Defence, central and local government, and the Civil Defence organisation.

The upper operations room at stand down in 1992

The York Headquarters

20 Group Control was constructed on government ground on the western side of York, accessible to the urban centres of both York and Leeds. Tucked away behind a Victorian villa, its existence was an open secret throughout its operational life. The semi-sunken, mass concrete structure was not designed to withstand a direct hit. Instead the UKWMO system relied on a concept of redundancy – that roles, equipment and data were replicated across many sites and could be picked up if another site went down.

Each post and control had the same basic equipment for observing a bomb’s orientation, power and subsequent radiation levels. At the heart of the control, an operations room – its design taken from ops rooms of the previous war – recorded data across a series of charts, maps and forms, then transmitted this information by teleprinter to clients.

Maintaining communications was crucial to the system working, and while much of UKWMO equipment changed little over 30 years, the communication technology developed over time. By time of stand down, the ROC were using Victorian pinhole camera technology to spot bombs, and a Message Switch Exchange (which can be understood as a precursor to the internet) to inform the world.

The bunker’s attack state board

Operation

The York network was administered by one full-time and two part-time paid officers supporting several hundred volunteers across the group. Three evenings a week, ROC crews underwent training. Periodic exercises were conducted, the longest of which were staged over 24–36 hours. The bunker remained otherwise unoccupied, waiting for a change in the global political climate indicating a possible move toward conflict. Should tensions rise sufficiently, the ROC would be put on alert, with crews rotating round the clock at the Group Control. Had an imminent threat of attack been logged, the Control doorway would be closed, with the bunker containing those on duty committed to watching, waiting and responding.

Across the 30-year operational period, including during the Cuban Missile Crisis of 1962, the network was never put on full operational alert.

ROC sign posted at the bunker

The ROC

The ROC was a diverse organisation for its time. With a roughly equal gender spread, its role in urban and rural locations, and across differing socio-economic areas, saw it recruit from a wide social pool. The corps retained a close affiliation with the RAF, despite having moved into the Home Office, reflected in its uniform, insignia and hierarchy of roles.

Membership demanded the commitment of time, adherence to discipline and, ultimately, a willingness to sacrifice your personal affairs to the national cause. It also brought a fraternal bond formed through a strong sense of identity and affiliation. Despite, or perhaps because of, the gravity of its purpose, the ROC was also an intensely social organisation. Lifetime friendships and relationships were born from the corps – and a pride and sense of association are still keenly felt and fostered by its veterans.

The bunker photographed in 2002 as conservation commenced

Stand down and conservation

In 1989 a wave of popular uprisings brought an end to communist rule and Soviet dominance across Eastern Europe, symbolised by the fall of the Berlin Wall in November of that year. As the tensions and stand-off of the Cold War dissipated, the immediate threat of nuclear conflict lifted. The majority of the ROC was stood down on 30 September 1991, with the network of bunkers finally closing in March the following year. Aspects of the York Control were removed, notably communications kit, but otherwise its steel door was locked and the interiors remained untouched.

In 2000 English Heritage made the bold move to take what was, by then, a remarkably intact survival of Britain’s nuclear culture into its portfolio of properties. After a five-year programme of conservation and research, the site was opened as our most modern attraction.

Find out more

  • Visit the bunker

    Go underground to visit the York Cold War bunker as it would have looked when in operation. Pre-booking is essential.

  • Buy the guidebook

    The York Cold War bunker guidebook contains a tour and more information on the history of the eerie No. 20 Group Headquarters.

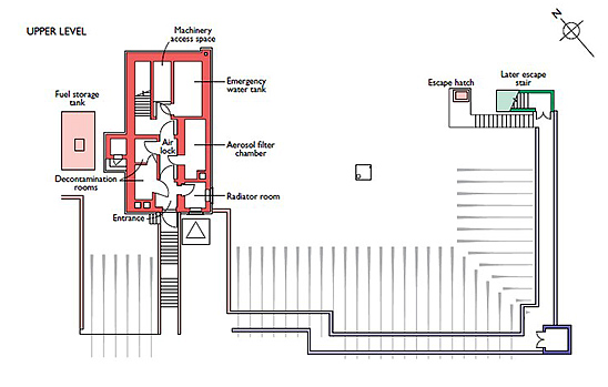
  • Download a plan

    Download this PDF plan to see how the bunker was laid out over several floors.

  • Dover Castle’s wartime tunnels

    Dover Castle and its network of secret tunnels played a role in several wars including the Cold War. See some collection highlights.